
Featured Waterfront Home for Sale- Priced at $549,500
4 BR • 4 BA • ~2,700 sq ft • Lake-view lot • Covered back porch • Open-concept living with custom finishes

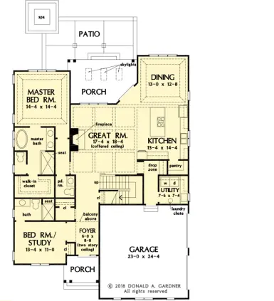
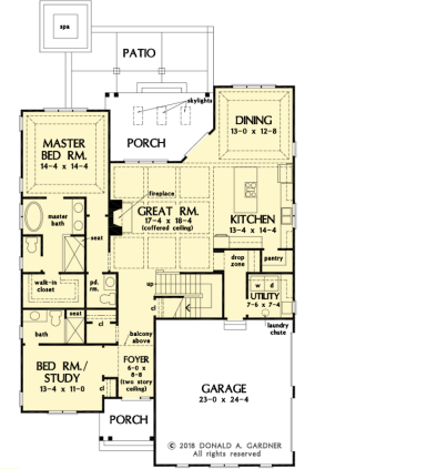
Welcome to 2327 Livingston Way — a beautifully built Alice floor plan offering over 3,400 sq ft of elevated comfort and style in the sought-after East Lake community of Hernando, MS. ????️ Built in 2024, this 6-bedroom, 5-bath home sits on a quiet cul-de-sac lot with a fully fenced backyard, wooded outdoor area, and plenty of space for relaxing, entertaining, or simply enjoying the peace of East Lake living.
????️ Built in 2024, this 6-bedroom, 5-bath home sits on a quiet cul-de-sac lot with a fully fenced backyard, wooded outdoor area, and plenty of space for relaxing, entertaining, or simply enjoying the peace of East Lake living.
✨ Highlights include:
Open-concept kitchen with 5-burner cooktop, double ovens, quartz counters, and soft-close cabinets
2 primary suites with walk-in closets and spa-style baths
Covered back patio, recessed lighting, tech-shield roof decking, and spray foam insulation
2-car side-load garage with extended driveway
Walking trails, lakes, and nearby access to Hernando schools, shops, and the new state-of-the-art high school
With six total bedrooms (or five + bonus/game room), this home blends the best of country charm with high-end modern finishes in one of the most desirable communities in DeSoto County.
Call Mark Utley TODAY- 901-494-7080
Our Homes

4 BR • 4 BA • ~2,700 sq ft • Lake-view lot • Covered back porch • Open-concept living with custom finishes


East Lake
IT’S OUR AIM TO DELIVER YOUR DREAM HOME.
Nestled in the serene beauty of the Mid-South, our thoughtfully designed community offers a harmonious blend of nature, comfort, and community. Imagine waking up to breathtaking lake views, enjoying leisurely strolls through picturesque trails, and building lasting memories with loved ones. At East Lake, we’ve crafted a lifestyle where tranquility and convenience intertwine seamlessly. Experience the epitome of Southern living and find your dream home today.
