THE SAVANNAH

Plan Specs

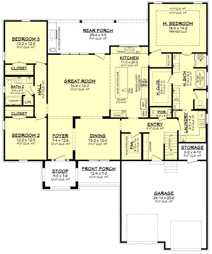
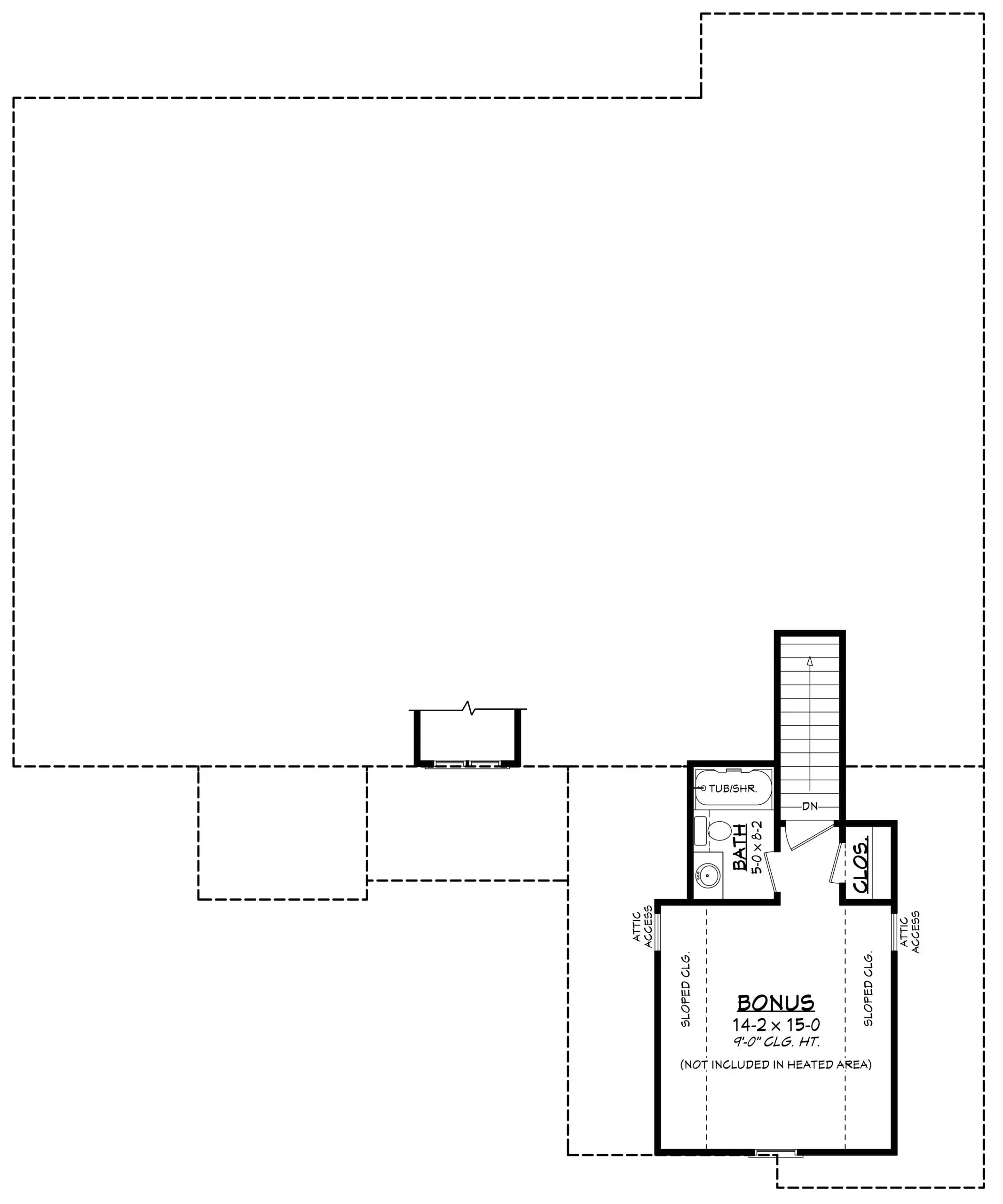
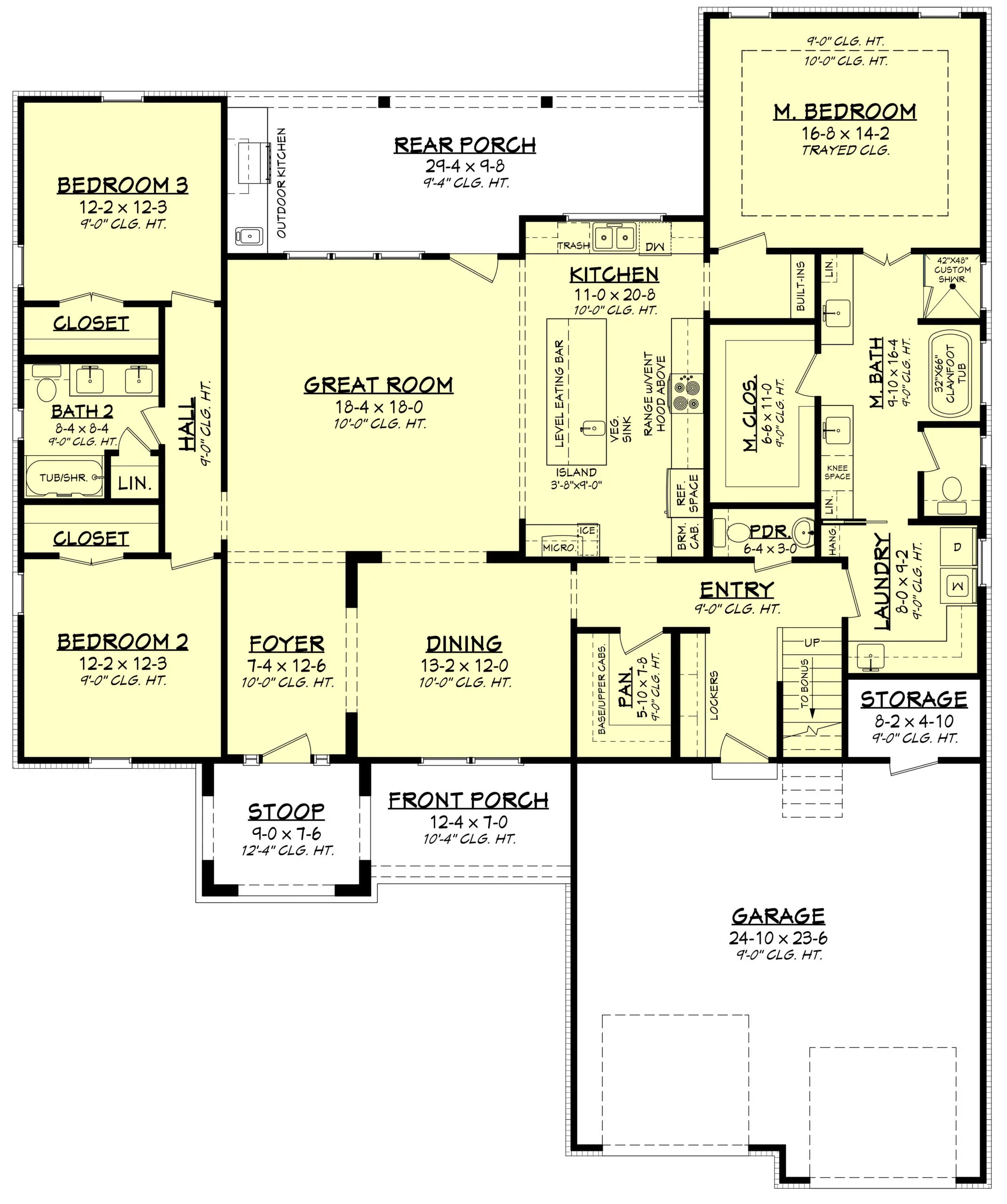
One and a half story with 3 bedrooms, 2 and a half baths downstairs with private en suite or game room upstairs. Double door entry, walk in pantry, primary bath walk through to laundry room.

Floor Plans (click image to expand)

Property Details

One and a half story with 3 bedrooms, 2 and a half baths downstairs with private en suite or game room upstairs.  Double door entry, walk in pantry, primary bath walk through to laundry room.

All homes pics are rendering only. Our homes are 80 percent brick + with no front load garages allowed.  All homes have a three-car garage and customization options.

Our Homes

More East Lake Properties

Spacious 5-Bedroom Home on Cul-De-Sac Lot For Sale- Priced at $569,500

Welcome to 2327 Livingston Way — a beautifully built Alice floor plan offering over 3,400 sq ft of elevated comfort and style in the sought-after East Lake community of Hernando, MS. ????️ Built in 2024, this 6-bedroom, 5-bath home sits on a quiet cul-de-sac lot with a fully fenced backyard, wooded outdoor area, and plenty of space for relaxing, entertaining, or simply enjoying the peace of East Lake living.

Featured Waterfront Home for Sale- Priced at $549,500

4 BR • 4 BA • ~2,700 sq ft • Lake-view lot • Covered back porch • Open-concept living with custom finishes

The Abigail

4 bedrooms and 4 bathrooms (2 up and 2 down)

East Lake

Ready For Your Dream Home?

IT’S OUR AIM TO DELIVER YOUR DREAM HOME.

Nestled in the serene beauty of the Mid-South, our thoughtfully designed community offers a harmonious blend of nature, comfort, and community. Imagine waking up to breathtaking lake views, enjoying leisurely strolls through picturesque trails, and building lasting memories with loved ones. At East Lake, we’ve crafted a lifestyle where tranquility and convenience intertwine seamlessly. Experience the epitome of Southern living and find your dream home today.